BATI20
Résumé de la première journée de réflexion organisée le 9 mai :L’Atelier Paysan, en collaboration avec la Ressourcerie Verte de Romans/Isère, organisent une R&D participative autour de la fabrication d’un bâtiment de 20m² avec un groupe Isère/Drôme/Ardèche. Soyez les bienvenus pour vous joindre à cette démarche collective !
La thématique du Bâtiment de 20m² a vu le jour car plusieurs fermes se confrontent à un manque d’espace, notamment sur les terres. Ceci, soit simplement par manque de place pour le stockage, pour la manutention, ou pour le lieu de vie, soit à cause d’un éloignement entre les bâtiments principaux de la ferme et les terres cultivées. Effectivement, l’éloignement entre le corps de ferme principal et les terres impose une logistique très contraignante, notamment pour la gestion des outils et du matériel de culture. Donc l’objectif de ce prototypage est d’aboutir à un bâtiment simple, adaptable à beaucoup d’usages différents, installable à proximité des terres.
Ce tableau résume à la fois le cahier des charges établi par le groupe de paysans/paysannes réunis, à la fois les idées de solutions techniques. Schéma de principe : L’axonométrie du schéma montre l’idée d’avoir une structure principale avec des côtes fixes, et des faces dont le remplissage est libre. Ces faces dénommées A, B & C, peuvent recouvrir plusieurs fonctions et usage.
La structure n’ayant pas de fondation, elle repose par exemple sur des moellons remplis de béton dont un fer dépasse pour enchâsser les poteaux dedans.
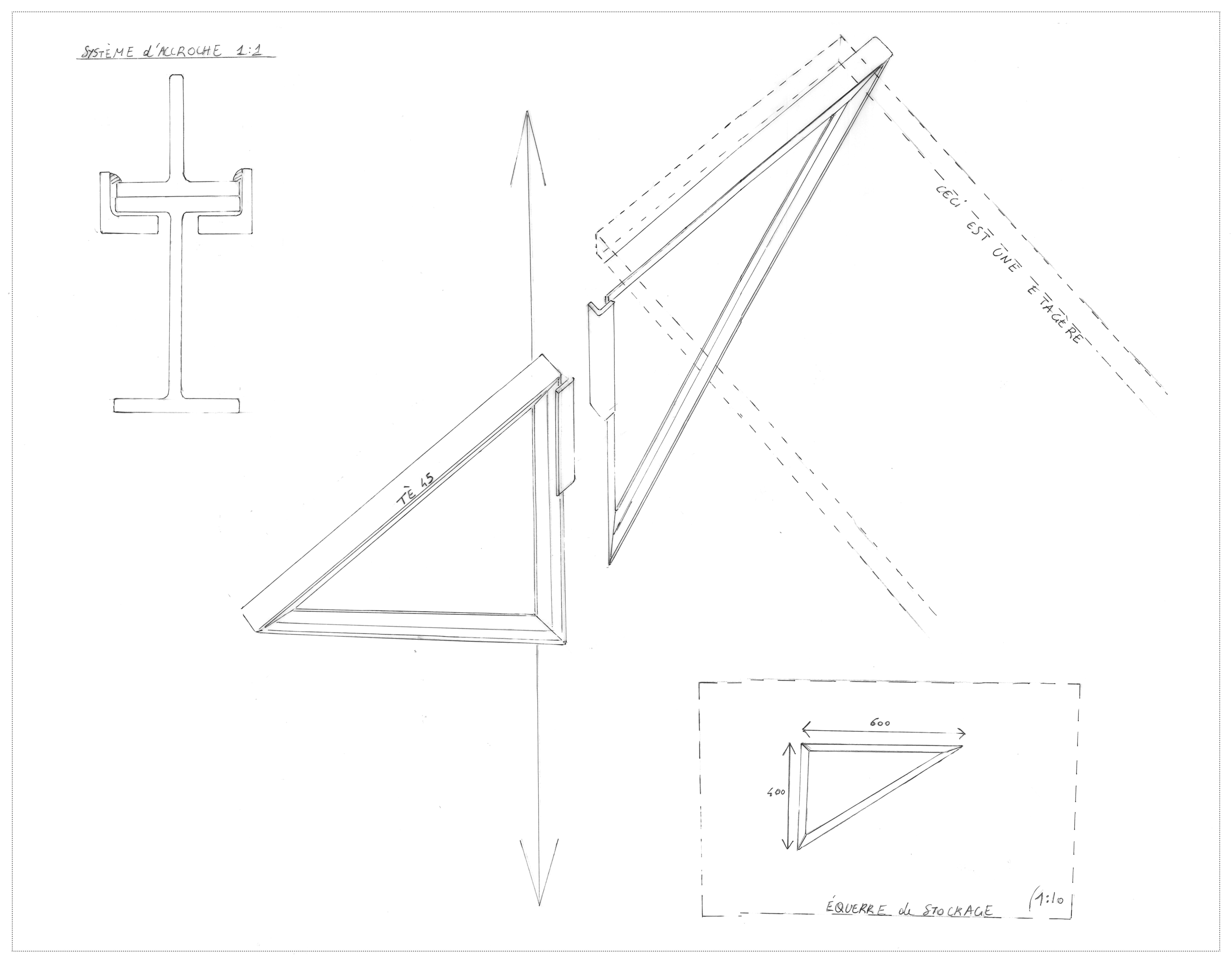
Pour faciliter le déplacement et le démontage, chaque portique peut être sectionné en 5 parties de petite longueur.
Schéma d’usage : Voilà quelques propositions d’usage pour les faces côté extérieur. Les poteaux pourraient être prétroués de manière à pouvoir y boulonner tout un tas de modules différents ce qui permet l’accroche au choix des fonctions proposées ou à inventer. Les propositions suivantes sont issues de celles que l’on a listé comme suit : face de contreventement ; face dépliable ; face avec porte et ouverture ; face avec trappe pour accéder aux outils stocké à l’intérieur ; face de stockage 1 ; face de stockage 2...etc
Combien ça peut coûter ?
Nous avons fait une estimation du prix de la structure, estimation qui sera ajustée en fonction du dimensionnement précis en fin de conception. Côté législatif ?
Il faut savoir qu’en termes d’urbanisme on classe les bâtiments notamment selon leur superficie. 5m² et moins, c’est un abri de jardin qui ne demande pas de déclaration ni de permis (du moins à l’heure d’aujourd’hui). 20m² et moins, c’est le maximum que l’on peut atteindre sans permis de construire, sous simple déclaration préalable de travaux. On apprend aussi sur cette page > ICI < que les zones ayant un PLU ou un Pos peuvent porter cette limite à 40m² selon les contraintes locales.
Extrait :
Téléchargez un exemplaire d’une déclaration de travaux pour y voir plus clair :Une déclaration préalable est exigée pour les constructions dont l'emprise au sol ou la surface de plancher est supérieure à 5 m² et répondant au critères cumulatifs suivants :
• une hauteur au-dessus du sol inférieure ou égale à 12 m,
• une emprise au sol inférieure ou égale à 20 m²,
• une surface de plancher inférieure ou égale à 20 m².
https://www.service-public.fr/particuli ... its/R11646
Et ensuite ?
A la suite de la première journée, nous avons décidé de prévoir les autres phases de la démarche afin de préserver l’énergie collective autour de la thématique. Trois dates sont fixées dans l’échéancier :
- Début juin : point d’avancement quant à la collecte de matériaux de récupération & point d’avancement sur la conception
- Début juillet : validation des plans, modifications, améliorations. Prévision de la session de prototypage. pour le Gaec des Roussets (environ 3 jours de formation à la charpente métallique et au montage du bâtiment).
- Mi-août : chantier de prototypage en collaboration avec la Ressourcerie verte de Romans sur Isère. La structure sera ensuite montée au Gaec des Roussets, dit « Batotopie », puis utilisé par les maraîchers du Gaec. Après usage, une validation du principe et une amélioration sera prévue.









