Autoconstruction partielle bâtie dans la pente

jonas
Messages : 132
Inscription : 29 janvier 2015, 09:03
Contact :

Autoconstruction partielle bâtie dans la pente

Message par jonas »

Les jardins épicés est une EARL dont l’organisation du bâti est intéressante par son insertion dans la pente et dans le paysage.
L’exploitation est née en 2008 autour de la culture maraîchère, de l’élevage de poules pondeuses, de la production de petits fruits, de plantes aromatiques et de produits transformées... le tout en 4 ha en rotation ! L’équipe au complet en saison se constitue de 7 personnes (dont trois associés) qui utilisent 2400m² de serres et deux grands bâtiments implantés en pente. L’espace entre le bâtiment haut et le bâtiment bas devient un espace essentiel et central : comme un patio ouvert sur deux côtés opposés, cet entre-deux traversant permet la circulation des véhicules, l’accès à presque tous les organes fonctionnels des bâtiments, et offre un cadre de travail agréable.
Le post ci-après traite de la seconde construction, le bâtiment haut. En 2011 commence la construction : le terrassement, les fondations et la dalle ont été faits par une entreprise de maçonnerie. Par la suite, la construction de la structure a été faite avec un charpentier proche et les exploitants. Enfin, 6 mois après le commencement, les exploitants commencent le second œuvre (bardage, intérieur...) en autoconstruction.
Panorama pris depuis le côté ouest. On y voit le parcours des véhicules, l'accès et la sortie vers les terres.
Panorama pris depuis le côté ouest. On y voit le parcours des véhicules, l'accès et la sortie vers les terres.
Panorama copie.jpg (862.41 Kio) Consulté 2914 fois
• Historique :
o Contexte : la ferme est située dans une pente douce, voire modérée. Depuis la route, la succession des plans se structure ainsi : d’abord, en bas, l’auberge et le parking ; puis un premier bâtiment, puis le deuxième en haut, dernièrement construit.
o Nature de l’exploitation et surfaces : maraichage, horticulture, petits fruits, plantes aromatiques, et transformations. 4 ha dont 2400 m² sous serre.
o Besoin initiale : agrandissement
o Clef de détermination : fonctionnalité et ajout d’organes internes
o Bâtiments existants :
Le premier bâtiment est d’une superficie au sol d’environ 125m². Il s’élève sur 3 niveaux utilisables. Le RDC s’ouvre sur le parking partagé avec l’auberge adjacente. A ce niveau se trouve, la zone de lavage et des salles de stockage (25 m² de ch. froide, 35m² cave patate, local de préparation et 25m² de stockage supplémentaire). Au niveau supérieur, il y a l’atelier, une salle de stockage de courge, et nous nous trouvons de plein pied face au deuxième bâtiment. Enfin au troisième niveau, un lieu de séchage, un bureau fermé et une terrasse s’organise aléatoirement sous les combles.
o Conception du nouveau bâtiment : Les associés et le cousin charpentier
o Parcours réglementaire : Rencontre préalable avec la mairie
− Type de zone : agricole
− PC : obtention du permis de construction sans problème. Recours à un architecte.

o Inauguration du bâtiment : dernière lame de bardage en hivers 2014
panorama présentant l'entrée sud, sur le parking commun entre l'auberge et la ferme.
panorama présentant l'entrée sud, sur le parking commun entre l'auberge et la ferme.
Panorama commenté copie.jpg (823.97 Kio) Consulté 2914 fois
• Construction : neuve
o Coût global : 150 000€ (dont 900m3 de terrassement = 16 000€ + 25 000€ de maçonnerie + 20 000 € de matériaux + 30 000€ charpente) + installation solaire (prix indicatif sur le marcher = 25 000€)
o Superficie totale : 125m² au sol, donc total de 250m²
o Choix constructifs :
− Structure 1 : poteaux béton armé ; mur de soutènement béton ; premier plancher en poutrelle hourdie
− Structure 2 : bois douglas sur la charpente et le 2ème niveau.
− Sol : dalle et fondation béton.
− Bardage : une partie en peuplier abattu et scié sur le terrain

o Temps
− De la conception jusqu'aux dernière lame de bardage : de 2011 à 2014 : dans les temps libres
o Particularités :
− Choix énergétiques : Solaire : 9 kilos en panneaux sur le toit, 3 000 kilos de revente à EDF par an
− Réemploi & récupération : peuplier scié par une scierie mobile (70€ le m3 de bois)
− Approvisionnement en eau : surplus du bassin communal qui déborde. A terme, une source est possible.

Perspective éclatée du nouveau bâtiment, avec décomposition des éléments structurels et annotation des fonctions et des installations ergonomiques.
Perspective éclatée du nouveau bâtiment, avec décomposition des éléments structurels et annotation des fonctions et des installations ergonomiques.
Panorama éclaté copie.jpg (1.09 Mio) Consulté 2914 fois
• Autoconstruction : partielle
o Accompagnement d’un professionnel maçon : pour le dallage et poteaux, les premiers murs de soutènement et les poutrelles hourdie.
o Accompagnement d’un professionnel charpentier : structure et couverture
o Autoconstruction autogérée : terrassement et mur de soutènement de la cour + seconde œuvre + bardage
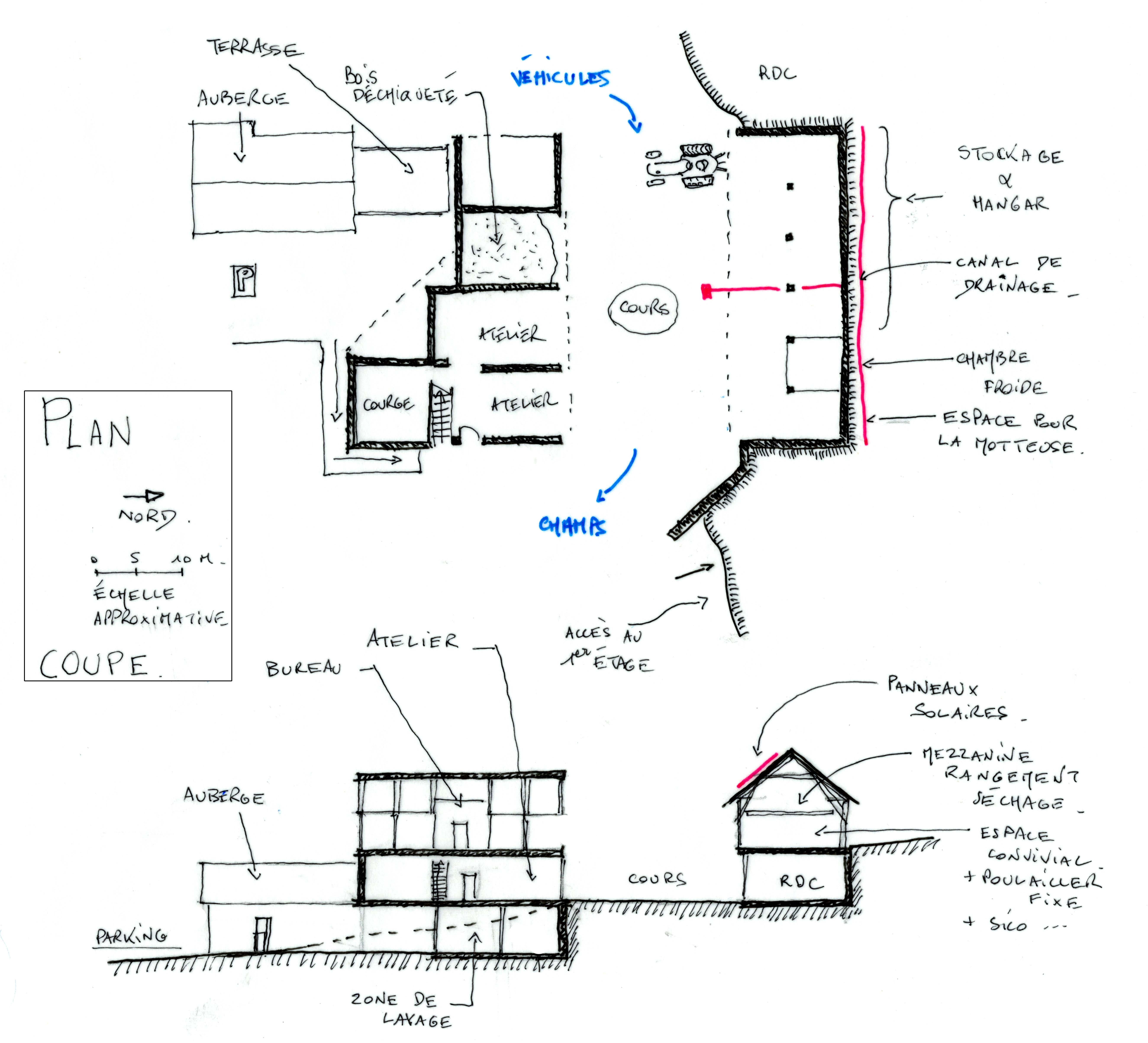
Sur la coupe, en bas, il manque la représentation du parcours de la production. 1. les légumes proviennent des champs et sont soit stockés directement en bas (niveau du parking), soit dans les étages. 2. au fur et mesure de la saison, de l'approvisionnement et du séchage, la production descend vers le parking (en diable). 3. le camion est chargé sur le parking en bas avant de partir au marché et à la coopérative.
Sur la coupe, en bas, il manque la représentation du parcours de la production. 1. les légumes proviennent des champs et sont soit stockés directement en bas (niveau du parking), soit dans les étages. 2. au fur et mesure de la saison, de l'approvisionnement et du séchage, la production descend vers le parking (en diable). 3. le camion est chargé sur le parking en bas avant de partir au marché et à la coopérative.
Plan coupe copie.jpg (909.86 Kio) Consulté 2914 fois
• Usage :
o Organes internes : niveau 1
− Chambre froide à venir : 15 m²
− Stockage matériel et véhicule : 80 m²
− Motteuse : 30 m²

o Organes internes : niveau 2
− Espace convivial
− Espace de séchage
− Rangement de matériel
− Poulailler fixe (15m²) et silos de stockage pour le grain

o Ergonomie :
− Zone de transpalette ; chargement ; déchargement : l’organisation dans la pente permet difficilement l’aménagement d’un circuit palette...
− Quai de déchargement : absent
− Quai de chargement du camion : absent

o Défauts majeurs :
− Le camion de livraison (marcher et coopérative) doit être chargé sur le parking, devant l’auberge, ce qui engendre du bruit pour les voisins
− Pas de quai de chargement


• Si c’était à refaire !
o Plus d’autoconstruction !

A voir sur l’exploitation :
Poulailler mobile de l’exploitation (pour pondeuses) viewtopic.php?f=160&t=2423
Répondre

Revenir à « Bâtis autoconstruits »

Qui est en ligne ?

Utilisateurs parcourant ce forum : Aucun utilisateur inscrit et 2 invités