Laveuse à légumes avec plans

cyrilcyrilcyril
Messages : 1
Inscription : 05 mai 2023, 10:07
Contact :

Laveuse à légumes avec plans

Message par cyrilcyrilcyril »

Création d’une laveuse à légumes dans le cadre du PFF pendant la formation “S'installer avec l'approche collective des technologies paysannes” du 17/04/2023 au 29/06/2023 à L'Atelier Paysan

La laveuse est composée de 2 parties :
- un chassis en métal
- un cylindre en bois
Le tout a été construit en 2 jours et n'est pas totalement terminé
chassis1.jpg
chassis1.jpg (310.92 Kio) Consulté 3896 fois
Le chassis est un support avec 4 roulettes qui vont venir s'insérer dans les jantes du cylindre, les jantes servant ainsi de rails.
chassis2.jpg
chassis2.jpg (313.04 Kio) Consulté 3896 fois
(ne faites pas comme moi et faite gaffe à l'alignement et à l'équerrage des supports des roues ^^)
laveuse1.jpg
laveuse1.jpg (275.18 Kio) Consulté 3896 fois
Une fois le cylindre posé sur le chassis, il doit pouvoir tourner sans effort
laveuse2.jpg
laveuse2.jpg (245.92 Kio) Consulté 3896 fois
Le tube de cuivre vient s'insérer dans les 2 pièces A4 après avoir posé le cylindre. Il suffira d'y fixer un tuyau d'arrosage à une extrémité pour pouvoir arroser les légumes à l'intérieur du cylindre.
laveuse3.jpg
laveuse3.jpg (229.11 Kio) Consulté 3896 fois
laveuse4.jpg
laveuse4.jpg (264.88 Kio) Consulté 3896 fois
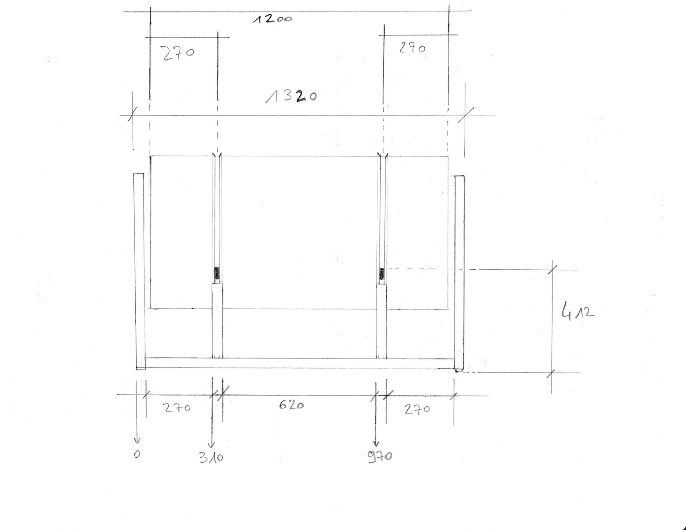
Voici la nomeclature complète de ce que j'ai fait, toutes les longueurs sont en mm :
Cylindre :
- 2 jantes de vélo de dimension 20 x 622
- 18 planches de bois de 1200 x 94 x 25
- 72 vis à bois de 20 (36 par jante)

Chassis :
- pièce A1, tube carré 40x2, longueur 1320, quantité 2
- pièce A2, tube carré 40x2, longueur 520, quantité 3
- pièce A3, tube carré 40x2, longueur 790, quantité 4
- pièce A4, tube carré 40x2, perçage diamètre 15, longueur 600, quantité 2
- pièce A5, tube carré 40x2, longueur 300, quantité 4
- pièce A6, fer plat 40x10, longueur 80, quantité 4
- pièce A7, fer plat 40x10, angle1 45°, angle2 45°, longueur 100, quantité 4
- pièce A8, fer plat 40x5, longueur 40, quantité 4
- 4 roulettes fixes à platine, diamètre 40 mm, épaisseur de la roue 17,5mm (< 20mm pour qu'elle puisse rentrer dans la jante)
- tube en cuivre de diamètre 14mm, longueur 1400, perçage tous les 50 avec un foret de 1,5 dans 2 directions différentes (formant un angle de 30° ~) sur 1150mm. ne pas percer sur 120-130mm à chaque extrémité.
- une vis M12x30 dont le pas de vis est recouvert de téflon pour boucher de manière étanche une extrémité du tube de cuivre

Ainsi que les plans :
plans-p1.png
plans-p1.png (879.57 Kio) Consulté 3896 fois
plans-p3.png
plans-p3.png (350.16 Kio) Consulté 3896 fois
plans-p2.png
plans-p2.png (386.97 Kio) Consulté 3896 fois

Améliorations :
Les roulettes utilisées ne conviennent pas, il faut que la matière de la roue soit le plus dure possible, idéalement du métal. Une roue avec une matière souple comme celles que j'ai pris provoque de nombreux frotttements et s'use très rapidement.

L'idée au départ était d'utiliser un vieux vélo d'appartement pour faire tourner le cylindre en venant coler la roue avant du vélo sous le cylindre. Finalement ça ne fonctionne pas très bien avec le vélo que j'ai utilisé car la roue est en plastique dur et il faudrait une roue un peu dégonflée pour pouvoir venir épouser la forme du cylindre et ainsi améliorer le contact pour le faire tourner. Dans mon cas ça patinait plus que ça tournait ^^
En attandant d'améliorer ce système on peut simplement fixer des bouts de tasseaux en bois à intervales réguliers (ou des poignées, ce qu'on a sous la main quoi) au centre des lames en bois du cylindre pour pouvoir le faire tourner simplement avec les mains, ça sera déjà utilisable en l'état.

Il manque également la pose d'un chargeur d'un côté et d'une planche/porte de l'autre (j'ai prévu de les faire en bois) pour pouvoir mettre les légumes d'un côté et qu'ils ne sortent pas du tube durant le lavage, seulement une fois que l'on aura retiré la planche à l'autre extrémité.
mike34
Messages : 12
Inscription : 02 juin 2023, 11:56
Contact :

Re: Laveuse à légumes avec plans

Message par mike34 »

Invention très cool et créative, ton dessin est très beau. Je crois au succès de cette invention lego 2k drive
Dernière modification par mike34 le 21 juillet 2023, 06:15, modifié 1 fois.
Avatar de l’utilisateur
PGueret
Messages : 172
Inscription : 18 mai 2021, 14:44
Contact :

Re: Laveuse à légumes avec plans

Message par PGueret »

Peut-être que des gros roulements à billes (occasion récup' en garage gratuitement) feraient l'affaire en guise de roulettes ?

Je pense aussi aux vielles poulies à gorge pour courroies trapézoïdales de tracteur tondeuse, les garages motoculture en regorges (changement préventif donc elles sont souvent encore bonnes)
l'avantage des poulies à gorge, c'est que les vis qui relient le cerclage aux planches, passeraient au milieu de la poulie sans faire de sursaut..
A tester peut être.
Pierre :arrow: Animateur Formateur sur l'Antenne Grand Ouest de l'Atelier Paysan.
Répondre

Revenir à « Lavage des légumes »

Qui est en ligne ?

Utilisateurs parcourant ce forum : Aucun utilisateur inscrit et 1 invité